2/3 Ormond Esplanade, Elwood

Share
Sharing Listing
Sold
Sold

Contact agent for details

Property Type

Apartment

  • 2
  • 1
  • 1
Sold

Contact agent for details

Property Type

Apartment

  • 2
  • 1
  • 1
Auction

Sat, 14 February at 11:00AM

Agents

Make an enquiry

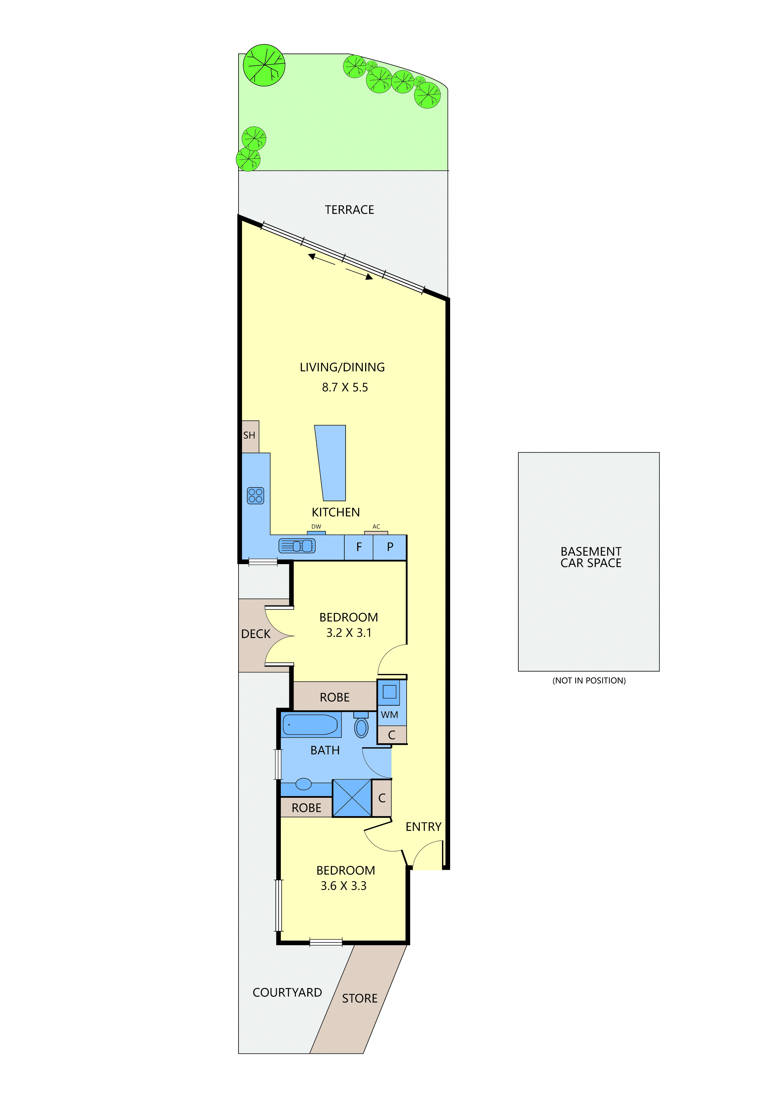
Courtyard, Beachside Entertainer

Immerse yourself in this stunning low-maintenance residence in the heart of the Elwood/Point Ormond beachside playground.

Set quietly in a boutique block this stylish home features a superb contemporary fit-out and offers a peaceful, low maintenance lifestyle, with the added bonus of the famous Elwood Beach directly opposite.

The highlight of this elegant home is the generous living/dining area where the entertainment area expands to the private covered terrace and courtyard. This tastefully appointed living space also encompasses a full-sized open-plan chef’s kitchen with granite benchtops, tiled splashbacks, Smeg cooking appliances, an integrated dishwasher, integrated refrigerator, pantry and a portable cook’s work bench.

The generous bedrooms feature built-in robes – the main with French-door access to a second private courtyard with extra storage space. The large, fully tiled central bathroom includes a walk-in shower, a stone vanity, full sized bath and toilet. Thoughtful inclusions, such as the handy shelving and drawers in the hallway nook really give this stunner an edge.

Secure entry, secure car space, reverse-cycle air conditioning, Euro laundry, electricity augmented by solar, plus Glenhuntly Road cafes, Ormond Road boutique shops, restaurants, delis and transport make this gem a must-see for the discerning buyer seeking a vibrant, low maintenance, beachside lifestyle.

** All inquiries must include a telephone contact number.

View Map

Recent Sales in Elwood

Beds

1

Price

Contact agent for details

Property Type

Apartment

Sale Type

Private Sale

Beds

1

Price

$410,000

Property Type

Unit

Sale Type

Auction

Beds

2

Price

$647,000

Property Type

Apartment

Sale Type

Auction

Beds

2

Price

Contact agent for details

Property Type

Apartment

Sale Type

Auction

Beds

3

Price

$875,000

Property Type

Unit

Sale Type

Private Sale

Address
Beds
Price
Property Type
Sale Type
1
Contact agent for details
Apartment
Private Sale
1
$410,000
Unit
Auction
2
$647,000
Apartment
Auction
2
Contact agent for details
Apartment
Auction
3
$875,000
Unit
Private Sale
Scooter LR v2
Suburb Profile

Elwood


Find an Agent

All of our agents have the experience and local knowledge to guide you

Book an Appraisal

Whether selling or investing, an appraisal of value will give you the confidence to make an informed decision

Manage my Property

Switch to Woodards Property Management