2 Gwendoline Avenue, Bentleigh

Share
Sharing Listing
Sold
Sold
Sold price

$2,005,000

Property Type

House

  • 3
  • 1
  • 1
  • 680sqm
Sold
Sold price

$2,005,000

Property Type

House

  • 3
  • 1
  • 1
  • 680sqm
Auction

Sat, 21 March at 2:00PM

Agents

Make an enquiry

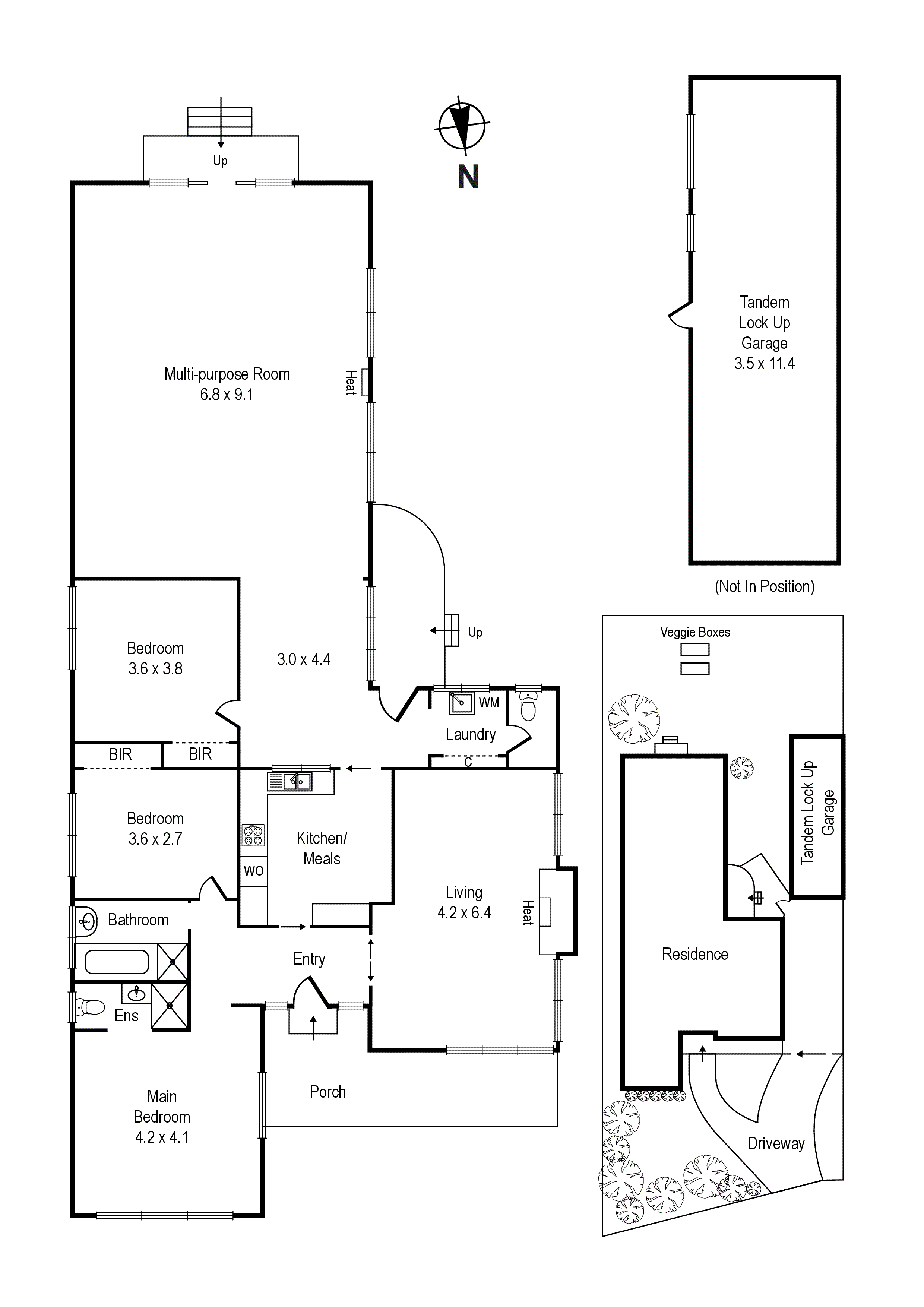
Blank Canvas for Your Own Masterpiece

A true blank canvas for your very own brand-new masterpiece, this generous north-fronting allotment of approx. 680sqm is just moments from the attractions and distractions along Centre Road, the open expanses of Allnutt Park and leading schools including the zoned Bentleigh West Primary School & Brighton Secondary College.

Currently home to a time-worn weatherboard with three bedrooms and a choice of living areas – including a huge 6.8m x 9.1m multi-purpose room - the real drawcard here is the land itself. Boasting a broad 17.3m frontage (and depth of approx. 45m), it delivers satisfying proportions, perfect for a sensational new home with outdoor areas to match (STCA).

With an address that is close to bus stops and within easy reach of the station and highway, the property is brilliantly located for professionals, while Dendy & Hurlingham parks, Brighton Public Golf Course and even the bay are within minutes for endless and effortless leisure time enjoyment.

We donate a portion of our fee from every property transaction to the Woodards Foundation to support people experiencing homelessness, family violence and social isolation.

View Map

Recent Sales in Bentleigh

Beds

3

Price

Contact agent for details

Property Type

House

Sale Type

Private Sale

Beds

2

Price

$600,000

Property Type

Apartment

Sale Type

Auction

Beds

1

Price

Contact agent for details

Property Type

Apartment

Sale Type

Private Sale

Beds

3

Price

$2,005,000

Property Type

House

Sale Type

Auction

Beds

4

Price

Contact agent for details

Property Type

House

Sale Type

Auction

Address
Beds
Price
Property Type
Sale Type
3
Contact agent for details
House
Private Sale
2
$600,000
Apartment
Auction
1
Contact agent for details
Apartment
Private Sale
3
$2,005,000
House
Auction
4
Contact agent for details
House
Auction
Bentleigh Halley Park
Suburb Profile

Bentleigh

A hidden gem located 13km southeast of the CBD, Bentleigh is a place where locals find the perfect harmony between peaceful suburbia and urban convenience. Here you’ll enjoy proximity to pristine beaches, such as Brighton, Hampton and Sandringham, where you can soak up the sun or simply take a leisurely stroll along the shoreline.

The neighbourhood's excellent schools, recreational facilities, and local amenities make it an ideal place to raise a family, providing a nurturing environment for children to thrive. The nearby Chadstone Shopping Centre provides extensive retail, entertainment, and dining options. Serviced by Bentleigh station on the Frankston train line, as well as a range of bus routes, this suburb is well-connected in more ways than one.

Find an Agent

All of our agents have the experience and local knowledge to guide you

Book an Appraisal

Whether selling or investing, an appraisal of value will give you the confidence to make an informed decision

Manage my Property

Switch to Woodards Property Management