3/61 Middle Road, Maribyrnong

Share
Sharing Listing
Sold
Sold
Sold price

$685,000

Property Type

Villa

  • 2
  • 1
  • 1
Sold
Sold price

$685,000

Property Type

Villa

  • 2
  • 1
  • 1
Agents

Make an enquiry

Freshly renovated in quiet Maribyrnong setting

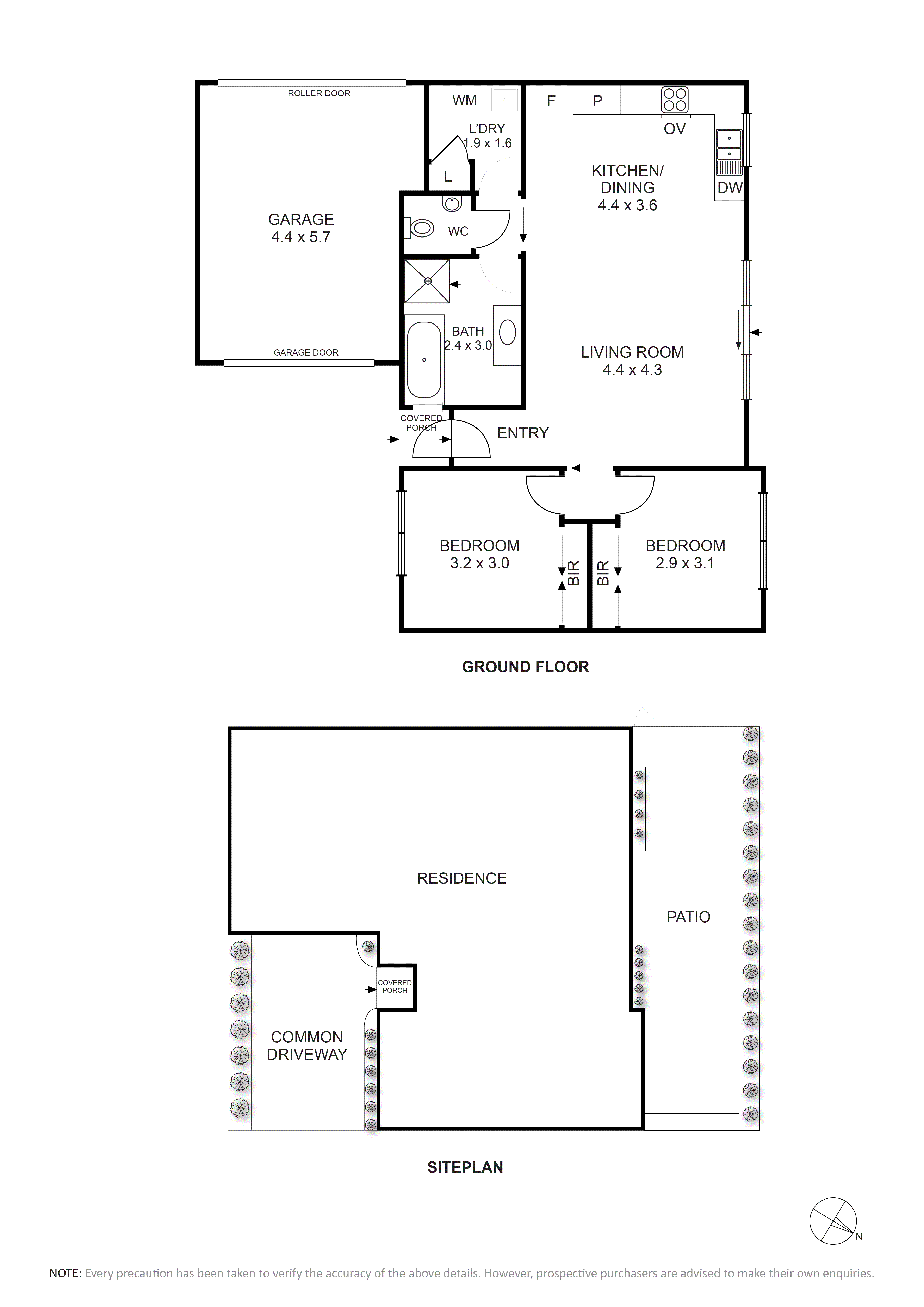
Freshly updated and thoughtfully designed, this single-level brick villa offers a superb opportunity for first-home buyers, investors, or those looking to downsize without compromise. Positioned in a quiet street, it combines modern convenience with a low-maintenance lifestyle.

Step inside to discover an open-plan living and dining zone enhanced by hardwood flooring and filled with natural light. Sliding doors connect seamlessly to a private paved courtyard, creating an inviting space for relaxed entertaining or quiet moments outdoors. The adjoining kitchen is both practical and stylish, featuring laminate benchtops, stainless steel appliances, a gas stove, electric oven, and excellent storage with overhead and under-bench cabinetry.

Two generous bedrooms, each with built-in robes and plush carpet, provide comfortable retreats with plenty of natural light. The bathroom large bathroom comprises separate bath, shower, and single vanity, complemented by a separate WC and a dedicated laundry with linen storage.

Additional highlights include evaporative cooling, ducted heating, a security system with security doors, and a secure lock-up garage with rear laneway access. Outdoors, the low-maintenance garden and private courtyard ensure ease of living year-round.

Enjoy unmatched convenience with Highpoint Shopping Centre, Puckle Street, and Union Road all close by, plus easy transport via tram route 82, multiple bus lines, and quick CityLink access. Weekend strolls along Pipemakers Park and the Maribyrnong River Trail complete the lifestyle picture.

We donate a portion of our fee from every property transaction to the Woodards Foundation to support people experiencing homelessness, family violence and social isolation.

View Map

Recent Sales in Maribyrnong

Beds

4

Price

Contact agent for details

Property Type

House

Sale Type

Auction

Address
24/4 Wests Road
Beds

2

Price

$445,000

Property Type

Unit

Sale Type

Private Sale

Beds

2

Price

$580,000

Property Type

Apartment

Sale Type

Private Sale

Address
53 Ibis Place
Beds

4

Price

$1,675,000

Property Type

House

Sale Type

Auction

Beds

4

Price

$1,630,000

Property Type

House

Sale Type

Auction

Address
Beds
Price
Property Type
Sale Type
4
Contact agent for details
House
Auction
2
$445,000
Unit
Private Sale
2
$580,000
Apartment
Private Sale
4
$1,675,000
House
Auction
4
$1,630,000
House
Auction
Maribyrnong
Suburb Profile

Maribyrnong


Find an Agent

All of our agents have the experience and local knowledge to guide you

Book an Appraisal

Whether selling or investing, an appraisal of value will give you the confidence to make an informed decision

Manage my Property

Switch to Woodards Property Management

Sign up to our mailing list
This site is protected by reCAPTCHA and the Google Privacy Policy and Terms of Service apply.