58 Frederick Street, Brunswick

Share
Sharing Listing
Sold
Sold
Sold price

$1,100,000

Property Type

House

  • 2
  • 1
Sold
Sold price

$1,100,000

Property Type

House

  • 2
  • 1
Agents
Glenn Bartlett
Email Glenn

Make an enquiry

Timeless character meets inner-north convenience

Set within one of Brunswick’s most connected and community-focused streets, this well-kept period residence offers comfort, character and everyday ease, making it an ideal choice for young families or downsizers seeking a low-maintenance lifestyle close to everything.

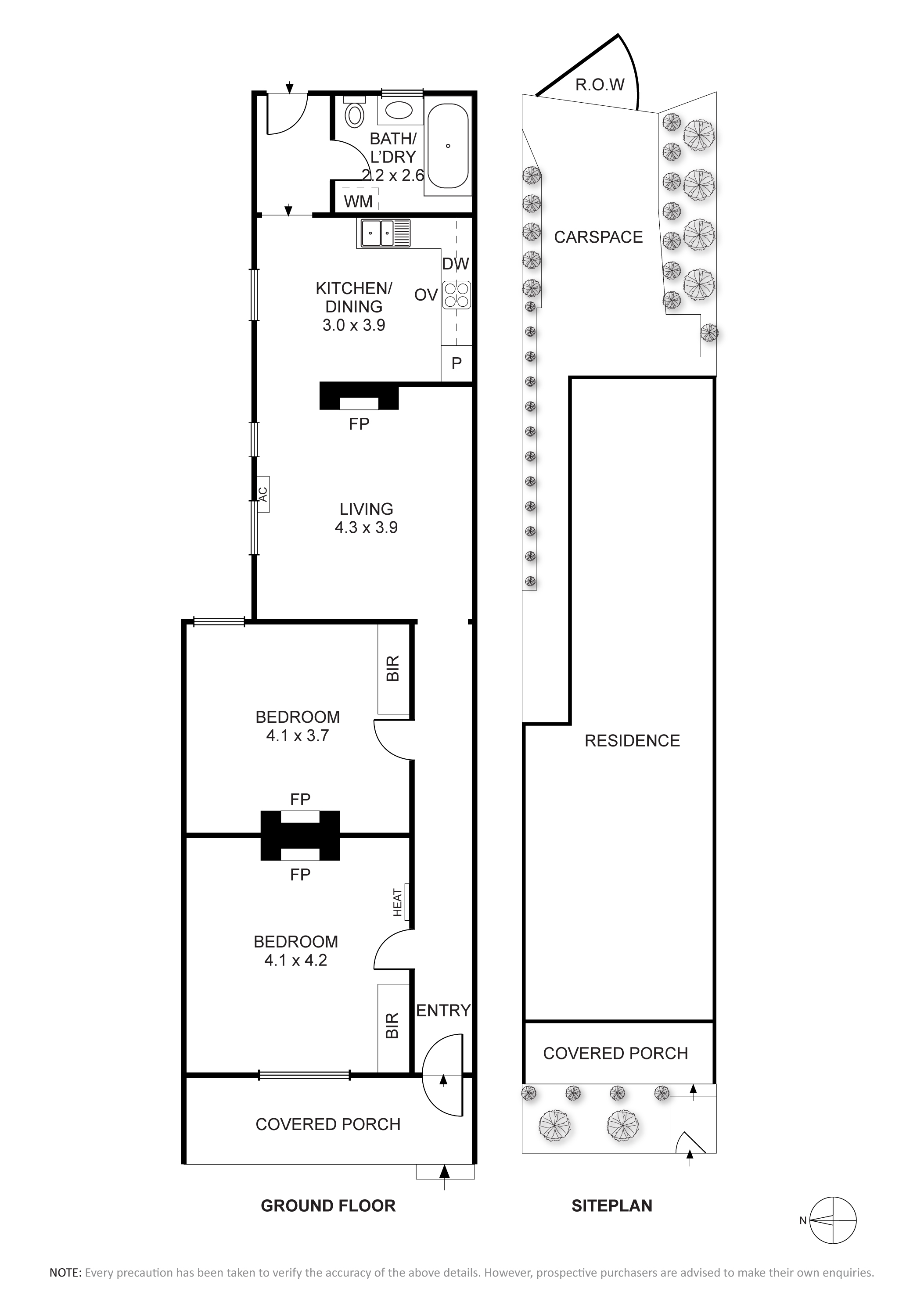
Inside, the home retains its classic appeal with original hardwood flooring, high ceilings and period detailing throughout. The centrally located living room is filled with natural light and features a gas fireplace, stained glass accents and split system heating and cooling, creating a warm and inviting space to relax. The kitchen and dining zone is thoughtfully combined for practicality, with laminate benchtops, tiled splashback, a freestanding gas stove and oven, built-in pantry and ample storage.

Accommodation is generous and flexible, with two well-proportioned bedrooms both featuring built-in robes, original hardwood floors, high ceilings and their own fireplaces. The bathroom is neatly presented with tiled walls, a shower-over-bath combination, freestanding single vanity and space for a washing machine, offering everyday functionality without compromise.

Outdoors, a paved and low-maintenance backyard provides a private setting for entertaining, complemented by a well-maintained landscaped garden and convenient rear laneway access.

Perfectly positioned, the home is moments from the cafés, restaurants and shopping of Sydney Road, Barkly Square, Sparta Place and Union Square Shopping Centre. Excellent transport options include Tram Route 19, easy access to CityLink and a short walk to Anstey Station. Families will appreciate the nearby green spaces of Brunswick Park, Gillion Oval and Clifton Park, as well as zoning for Brunswick North Primary School and Brunswick Secondary College.

View Map

Recent Sales in Brunswick

Beds

2

Price

$648,000

Property Type

Apartment

Sale Type

Private Sale

Beds

2

Price

$1,010,000

Property Type

House

Sale Type

Private Sale

Beds

2

Price

$1,100,000

Property Type

House

Sale Type

Private Sale

Beds

3

Price

$1,290,000

Property Type

Apartment

Sale Type

Private Sale

Address
3 Sparta Place
Beds

0

Price

Contact agent for details

Property Type

Sale Type

Private Sale

Address
Beds
Price
Property Type
Sale Type
2
$648,000
Apartment
Private Sale
2
$1,010,000
House
Private Sale
2
$1,100,000
House
Private Sale
3
$1,290,000
Apartment
Private Sale
0
Contact agent for details
Private Sale
brunswick baths
Suburb Profile

Brunswick


Find an Agent

All of our agents have the experience and local knowledge to guide you

Book an Appraisal

Whether selling or investing, an appraisal of value will give you the confidence to make an informed decision

Manage my Property

Switch to Woodards Property Management