94 Whitby Street, Brunswick West

Share
Sharing Listing
Sold
Sold
Sold price

$2,200,000

Property Type

House

  • 4
  • 2
  • 2
Sold
Sold price

$2,200,000

Property Type

House

  • 4
  • 2
  • 2
Auction

Sat, 8 November at 11:00AM

Agents

Make an enquiry

Art deco family entertainer in a quiet cul-de-sac

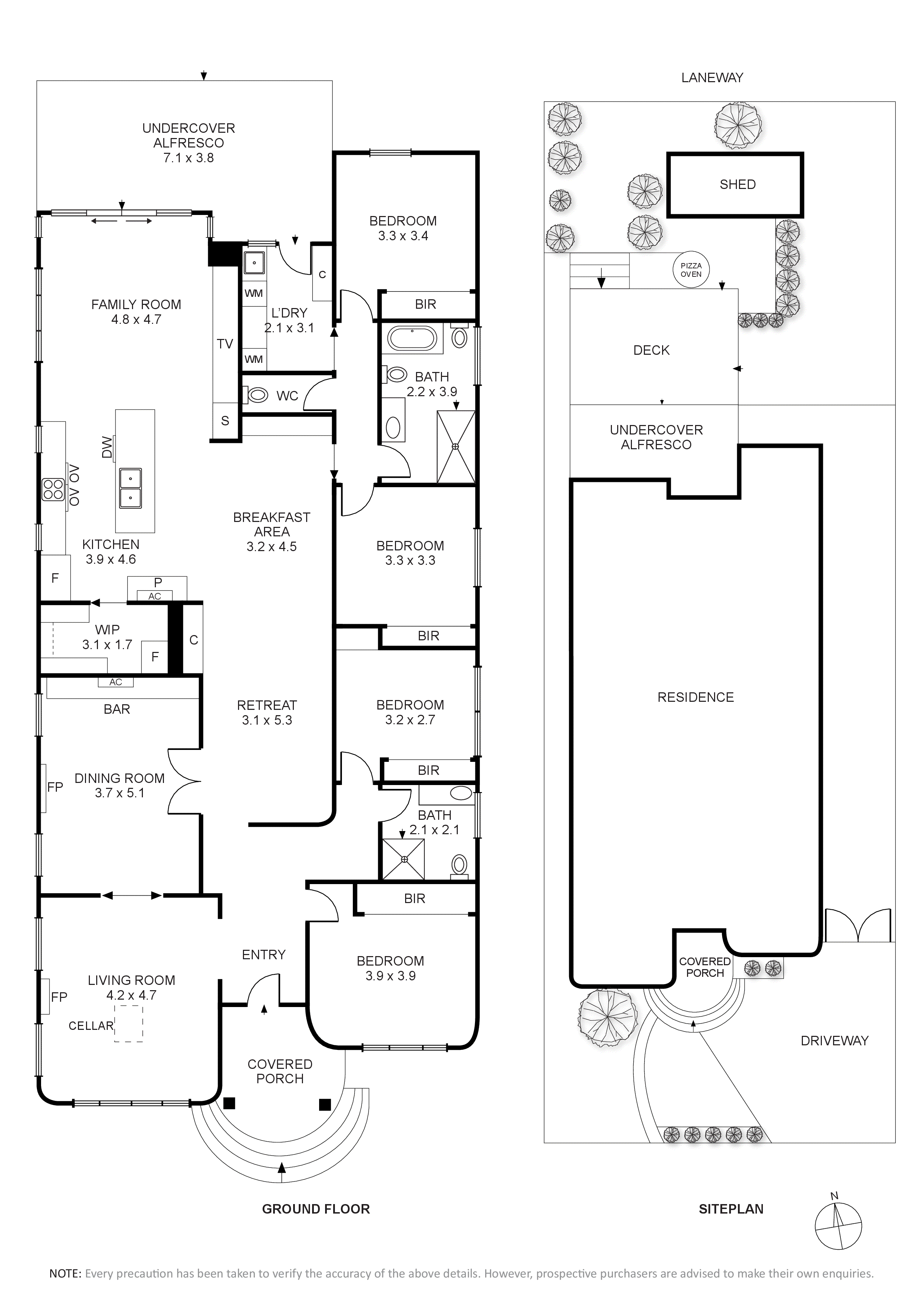
Tucked away in a quiet cul-de-sac, this solid brick Art Deco home blends character, comfort, and contemporary function – perfectly designed for families and those who love to entertain. The front retains its classic charm, while the rear opens into a spacious modern extension with a large outdoor deck, ideal for gatherings year-round. Inside, multiple zones provide the ultimate flexibility for family life, including two living rooms, a formal dining area, and an open plan living and dining space. The kitchen is a true centrepiece, featuring Caesarstone benchtops, an Artusi 1200mm oven and stove, Qasair rangehood, Miele dishwasher, and a butler’s pantry for added convenience. Timber floorboards flow throughout, complemented by modern comforts including ducted heating, split system cooling, Bose surround sound speakers inside and out, and a security alarm system for peace of mind. The home includes four bedrooms, one featuring a Murphy bed, along with two stylish bathrooms and three toilets. Both bathrooms feature floor-to-ceiling tiles, while a separate laundry and cellar/underground storage add practicality. Original details like a rock feature wall, two fireplaces, and abundant natural light enhance the home’s warmth and character. Outside, the expansive deck with a woodfire pizza oven, garden shed, and side access gate make entertaining effortless. Spanning an enormous 778sqm approx invites country style living while still enjoying inner city convenience. Located close to Melville Road shops, cafés, and the 58 tram line, with easy CityLink access. Moments from Sydney Road shops and dining, Moonee Ponds Creek Trail, Gilpin Park, and Brunswick Park. Zoned for Moonee Ponds Primary School and near RMIT’s Brunswick Campus and Brunswick Baths. An impressive family home, single level floorplan, a blend of period and modern features all set on an enormous block, the wait is over! We donate a portion of our fee from every property transaction to the Woodards Foundation to support people experiencing homelessness, family violence and social isolation.

We donate a portion of our fee from every property transaction to the Woodards Foundation to support people experiencing homelessness, family violence and social isolation.

View Map

Recent Sales in Brunswick West

Beds

3

Price

$1,210,000

Property Type

House

Sale Type

Private Sale

Beds

2

Price

$800,000

Property Type

Townhouse

Sale Type

Auction

Beds

2

Price

Contact agent for details

Property Type

Apartment

Sale Type

Auction

Beds

2

Price

$670,500

Property Type

Apartment

Sale Type

Auction

Beds

4

Price

$2,200,000

Property Type

House

Sale Type

Auction

Address
Beds
Price
Property Type
Sale Type
3
$1,210,000
House
Private Sale
2
$800,000
Townhouse
Auction
2
Contact agent for details
Apartment
Auction
2
$670,500
Apartment
Auction
4
$2,200,000
House
Auction
brunswick west jacobs reserve 01
Suburb Profile

Brunswick West


Find an Agent

All of our agents have the experience and local knowledge to guide you

Book an Appraisal

Whether selling or investing, an appraisal of value will give you the confidence to make an informed decision

Manage my Property

Switch to Woodards Property Management