17 Burke Road, Burnside Heights

Share
Sharing Listing
Sold
Sold
Sold price

$850,000

Property Type

House

  • 4
  • 2
  • 2
Sold
Sold price

$850,000

Property Type

House

  • 4
  • 2
  • 2
Agents

Make an enquiry

Spacious single-level family home with expansive outdoor entertaining

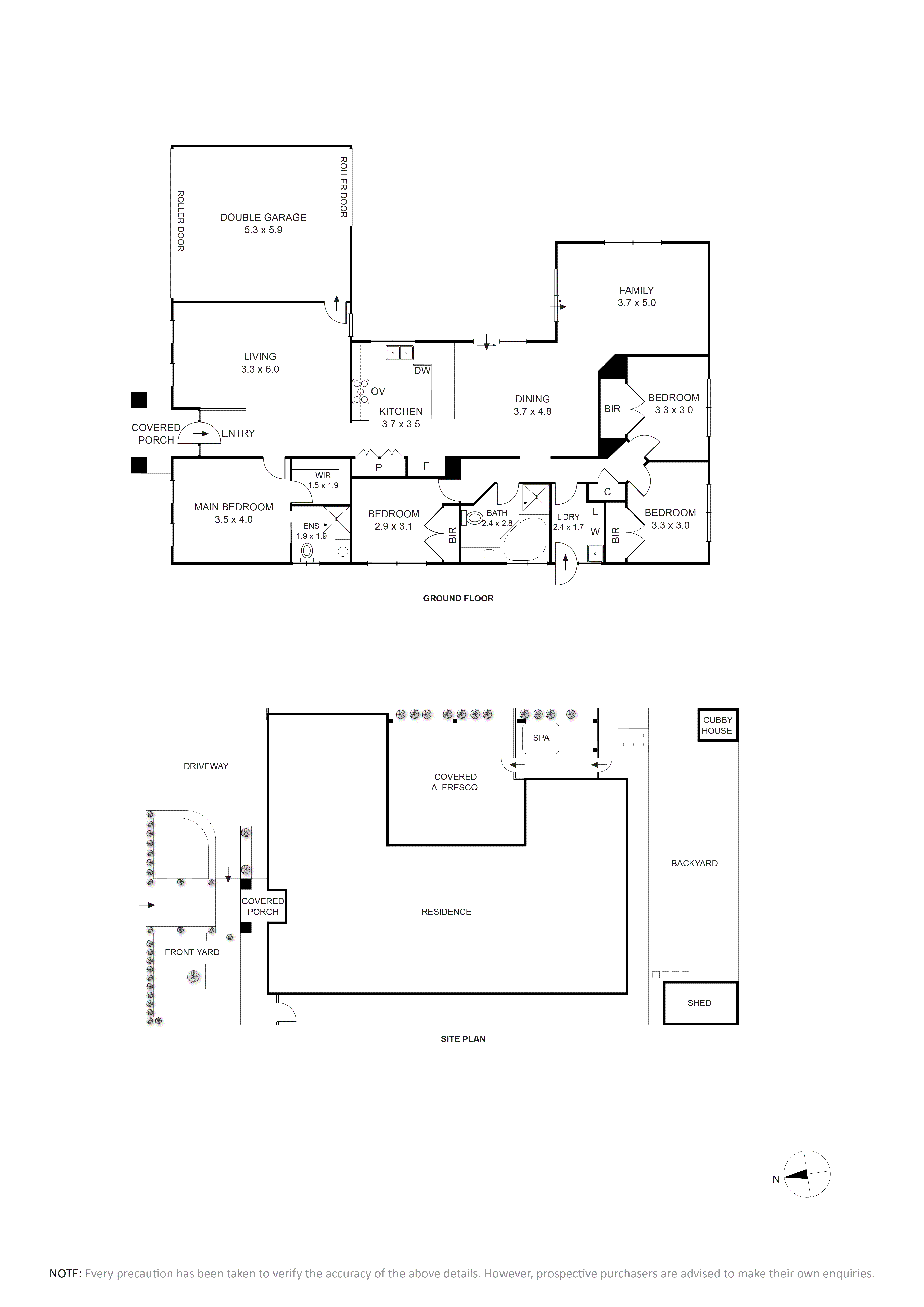
This spacious single-level brick home offers a perfect blend of family-friendly design, modern comforts, and outdoor living in the sought after Burnside Heights community. With four generous bedrooms, two bathrooms, and ample living space, the home is ideal for growing families seeking comfort, convenience, and low-maintenance living.

The large living and dining areas offer ample space for relaxation and entertaining, with two separate living zones providing flexibility for different activities. A covered alfresco area connects the main living space to the backyard, offering a private retreat with a built-in spa – perfect for unwinding or hosting guests.

The kitchen is designed for practicality, featuring engineered stone benchtops, a tile splashback, and premium appliances, including a freestanding 5-burner gas cooktop, electric oven, and dishwasher. The spacious layout ensures ample storage and preparation space, while LED downlights enhance the modern feel.

Accommodation includes four bedrooms, three of which feature built-in robes. The master bedroom boasts a walk-in robe and private ensuite, providing a quiet sanctuary for parents. The main bathroom offers a spa bath and shower, offering a relaxing experience.

Additional features of the home include ducted heating, evaporative cooling, ceiling fans in the bedrooms, an alarm system, and a substantial 11kW solar power system – significantly reducing energy costs and enhancing long-term sustainability.

Located in a highly connected area, the property offers easy access to major shopping centres, including CS Square, Watervale Shopping Centre, and Brimbank Shopping Centre. Keilor Plains Train Station is nearby for convenient city access, and the M8 Freeway ensures seamless commuting. The home is within walking distance to Kororoit Creek Primary School, and close to recreational parks including Burnside Heights Recreation Reserve, Kororoit Creek, and The Point Reserve for outdoor leisure.

We donate a portion of our fee from every property transaction to the Woodards Foundation to support people experiencing homelessness, family violence and social isolation.

Property Features
  • Study
View Map

Recent Sales in Burnside Heights

Address
17 Burke Road
Beds

4

Price

$850,000

Property Type

House

Sale Type

Private Sale

Address
Beds
Price
Property Type
Sale Type
4
$850,000
House
Private Sale
burnside heights playspace dscf4743
Suburb Profile

Burnside Heights


Find an Agent

All of our agents have the experience and local knowledge to guide you

Book an Appraisal

Whether selling or investing, an appraisal of value will give you the confidence to make an informed decision

Manage my Property

Switch to Woodards Property Management