46 Neerim Road, Caulfield

Share
Sharing Listing
Sold
Sold
Sold price

$1,750,000

Property Type

Townhouse

  • 3
  • 2
  • 2
Sold
Sold price

$1,750,000

Property Type

Townhouse

  • 3
  • 2
  • 2
Auction

Sat, 14 March at 2:00PM

Agents

Office: Carnegie Office
Make an enquiry

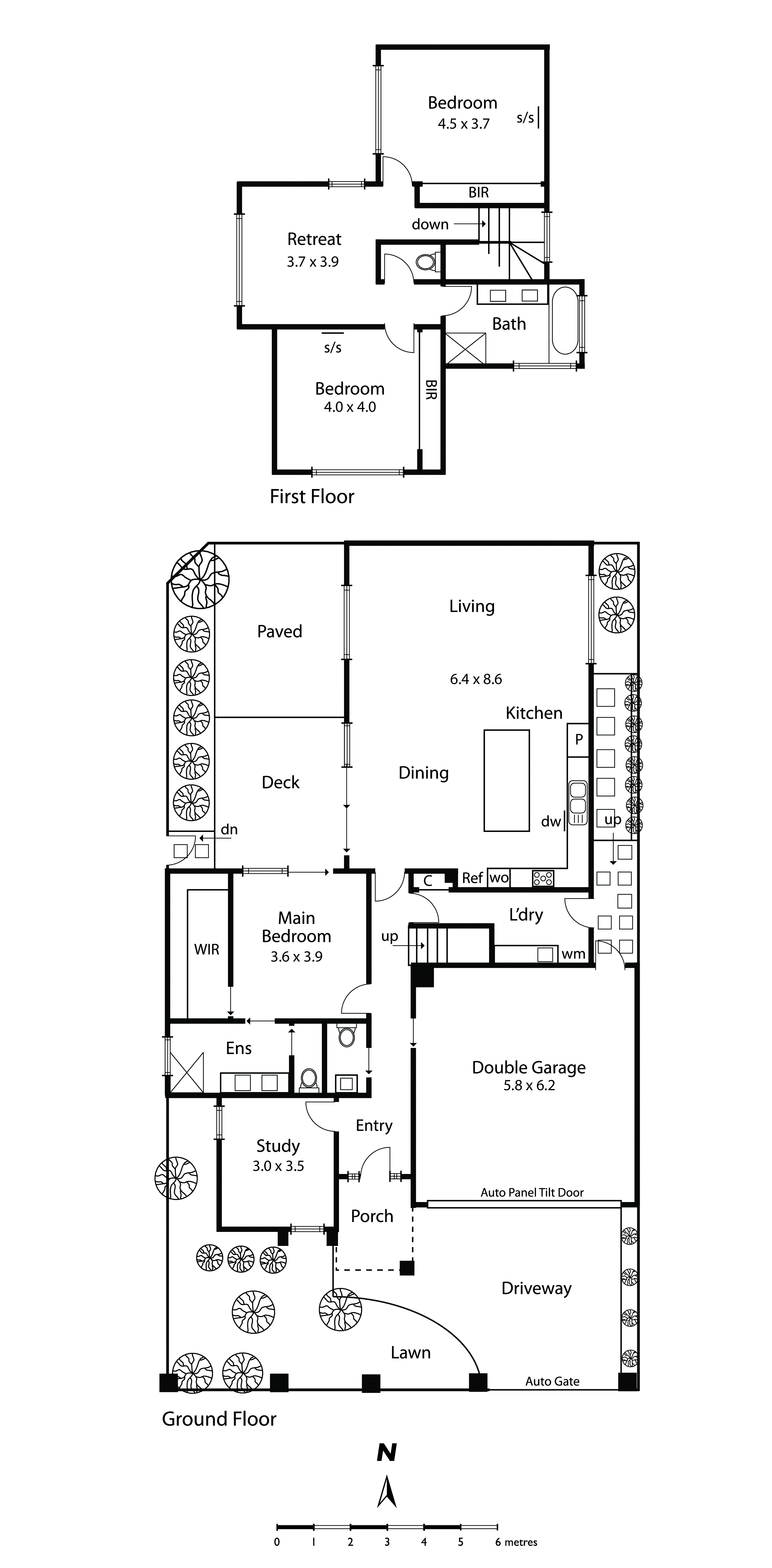
Beautifully appointed and brilliantly located

Perfect for modern families, professionals and even downsizers thanks to its ground-floor primary suite and low maintenance ease, this beautifully appointed residence offers space, style and comfort in a truly convenient, amenity-rich locale.

Appealing from the street with its striking contemporary façade and then impressing further with its warm & welcoming interiors, accommodation includes an open plan living/dining zone along with a sophisticated entertainer’s kitchen, which is anchored by a colossal island and is equipped with quality appliances.

The primary bedroom boasts its own outdoor access, along with an ensuite and walk-in robe. The two remaining bedrooms are of generous proportions and benefit from fitted wardrobes; they share a chic family bathroom while an upstairs retreat provides invaluable extra living space.

Retractable ceiling-height glass extends the home’s social spaces outside to a private and easy-to-maintain alfresco area for easy summertime hosting and year-round relaxation. Also offered are a dedicated study (potential fourth bedroom), ducted heating/cooling, split system heating/cooling, polished hardwood floors and double garage.

With Glen Eira College and the yet-to-be-completed Caulfield campus of Mount Scopus Memorial College within a stroll, this address is simply shouting out to families. Proximity to public transport, shopping destinations and Monash University is simply the icing on the cake!

We donate a portion of our fee from every property transaction to the Woodards Foundation to support people experiencing homelessness, family violence and social isolation.

View Map

Recent Sales in Caulfield

Address
46 Neerim Road
Beds

3

Price

$1,750,000

Property Type

Townhouse

Sale Type

Auction

Beds

3

Price

$840,000

Property Type

Unit

Sale Type

Auction

Beds

4

Price

$1,890,000

Property Type

House

Sale Type

Auction

Beds

3

Price

Contact agent for details

Property Type

House

Sale Type

Auction

Beds

3

Price

$690,000

Property Type

Apartment

Sale Type

Auction

Address
Beds
Price
Property Type
Sale Type
3
$1,750,000
Townhouse
Auction
3
$840,000
Unit
Auction
4
$1,890,000
House
Auction
3
Contact agent for details
House
Auction
3
$690,000
Apartment
Auction
caulfield park
Suburb Profile

Caulfield


Find an Agent

All of our agents have the experience and local knowledge to guide you

Book an Appraisal

Whether selling or investing, an appraisal of value will give you the confidence to make an informed decision

Manage my Property

Switch to Woodards Property Management