82 Miller Street, Carnegie

Share
Sharing Listing
Sold
Sold
Sold price

$1,271,000

Property Type

House

  • 2
  • 1
  • 1
  • 348sqm
Sold
Sold price

$1,271,000

Property Type

House

  • 2
  • 1
  • 1
  • 348sqm
Auction

Sat, 21 February at 10:00AM

Agents

Office: Carnegie Office
Make an enquiry

Light-Filled Living Wrapped in Leafy Gardens

Let the charm of this classic clinker provide the heartwarming setting for the next chapter of your property story. Whether you are a young buyer stepping up, an empty nester stepping down or an investor hunting quality real estate, this beautiful setting certainly fits the bill.

In a sought-after pocket within a walk of Koornang Park and the fabulous new swimming pool, the peaceful home is wrapped in established gardens which afford the light-filled interiors tranquil leafy views.

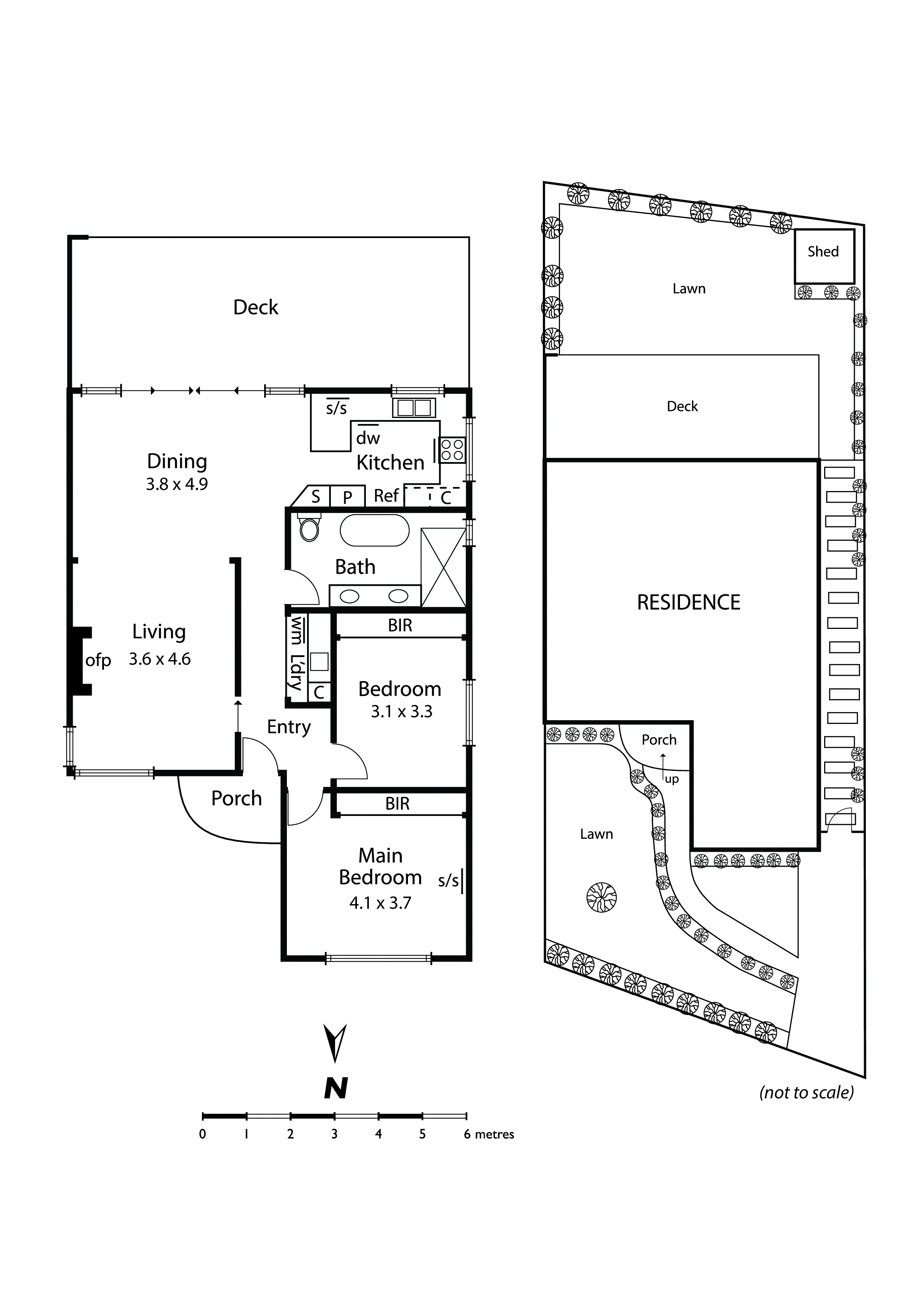
Opening to soaring ceilings and warm hardwood floors, the light-filled accommodation provides a generous living and dining zone with decorative fireplace feature. Flowing around to meet the contemporary kitchen boasting stone benchtops, plenty of cupboards and quality appliances, this space flaunts a bank of stacking sliders that connect indoors with the expansive alfresco deck and a leafy garden.

Two spacious bedrooms offering fitted wardrobes are also offered, they share the stylish bathroom with dual vanity, bath and accessible shower, while a large Euro-style laundry with storage plus split system heating & cooling are added highlights. An oversized attic with drop-down ladder, plantation shutters and plasterwork accents come included together with a garden shed and off-street parking.

Steps to the bus taking you up to the station, dining options & shops and close to Glen Huntly Primary School.

Vendor Advocacy - Craig Shearn, Gertrude & Gore 0418 596 388

We donate a portion of our fee from every property transaction to the Woodards Foundation to support people experiencing homelessness, family violence and social isolation.

View Map

Recent Sales in Carnegie

Beds

1

Price

$435,000

Property Type

Apartment

Sale Type

Auction

Beds

3

Price

$1,050,000

Property Type

House

Sale Type

Auction

Beds

1

Price

$450,000

Property Type

Unit

Sale Type

Private Sale

Address
220 Neerim Road
Beds

3

Price

$1,289,300

Property Type

House

Sale Type

Private Sale

Beds

3

Price

$1,190,000

Property Type

Townhouse

Sale Type

Auction

Address
Beds
Price
Property Type
Sale Type
1
$435,000
Apartment
Auction
3
$1,050,000
House
Auction
1
$450,000
Unit
Private Sale
3
$1,289,300
House
Private Sale
3
$1,190,000
Townhouse
Auction
Carnegie packer park
Suburb Profile

Carnegie

Located 12km southeast of the Melbourne CBD, this well-connected suburb offers it all, being in close proximity to multiple retail hubs including the Koornang Road Precinct, Chadstone Shopping Centre, as well as the popular beaches in Brighton, Hampton and Sandringham. Beautiful parks and recreational facilities are also nearby, including Koornang Park, Lord Reserve, Packer Park and the Carnegie Swim Centre.

You’ll also find several educational institutions in and around the suburb, from primary schools like Carnegie Primary School and St. Anthony's Primary School, secondary schools such as Glen Eira College and Sacred Heart Girls' College and renowned universities like Monash University's Caulfield campus. Carnegie is well-connected with its own train station on the Frankston line and multiple bus routes.

Find an Agent

All of our agents have the experience and local knowledge to guide you

Book an Appraisal

Whether selling or investing, an appraisal of value will give you the confidence to make an informed decision

Manage my Property

Switch to Woodards Property Management